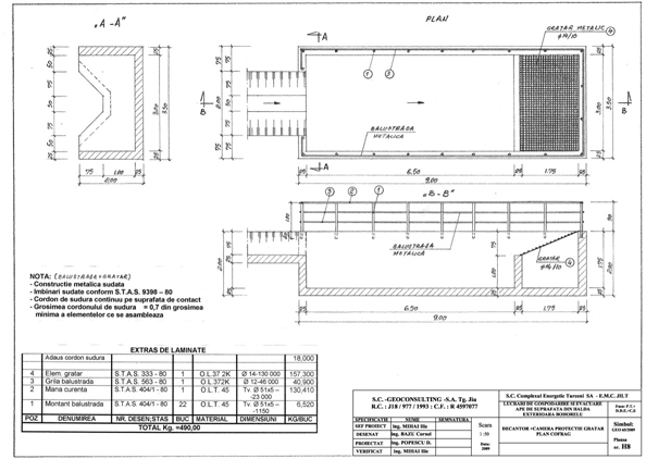
Lucrari de gospodarire si evacuare ape de suprafata din halda Bohorelu
Lucrarea a fost necesara si oportuna intrucat suprafetele destinate constructiei haldelor erau din ce in ce mai mici, fapt ce necesita cresterea inaltimii de haldare, concomitent cu pericolul de alunecare al acestora. Fenomenul de alunecare a fostinfluentat de prezenta apei in corpul haldelor, coroborat cu ponderea mare a rocilor de natura argiloasa precum si a nisipurilor umede sau saturate cu apa.
Pentru reducerea sau eliminarea fenomenelor de alunecare s-au realizat lucrari elaborate de gospodarire si evacuare a aplelor din si de pe corpul haldelor.
Fata de cele mentionate mai sus pentru halda Bohorelu, au fostprevazute o serie de lucrari de gospodarire si evacuare a apelor, dupa cum urmeaza:
- Foraje orizontale dirijate F02, F03 care se realizeaza in scopul evacuarii apelor in afara limitei perimetrului
- Lucrari hidrotehnice pentru preluarea apelor in mod rapid si controlat si conducerea acestora in afara zonelor de lucru. Acestea constau in santuri permeate si de pamant, decantor si camera protective foraj, drumuri de acces si podete tubulare.




Serviciile noastre
-
Proiectare generala
Una dintre etapele cele mai importante in realizarea unei constructii este etapa de proiectare.
-
Studii geotehnice
Studiul geotehnic reprezinta o analiza complexa a conditiilor indeplinite de teren ...
-
Foraje si laborator geotehnic
S.C. GEOCONSULTING S.R.L. executa foraje si sondaje de testare şi de prelevare de probe...
-
Masuratori geofizice
Geofizica este o ramură majoră a științelor Pământului care aplică principiile și metodele cantitative ...
-
Masuratori topografice
Lucrările de topografie aplicată sunt necesare aproape în toate ramurile economiei naţionale
-
Constructii
Servicii de consultanta, proiectare si executie pentru diferite tipuri de constructii