Lucrari de gospodarire si evacuare ape de suprafata din cariera Jilt Sud
Lucrarea este structurata pe trei volume:
- Volumul 1: Proiectultehnic
- Volumul 2: Documentatia de executie
- Volumul 3: Caietele de sarcini
Lucrarea a fost necesara si oportuna intrucat lucrarile de excavare in cariera se desfasoara in zone colinare ceea ce a dus la cresterea suprafetei de colectare si la un aflux important de ape din precipitatii ceea ce necesita redimensionarea statiilor de pompe aflate pe vatra carierei.
Coborarea cu excavatiile in zona colinara a dus la cresterea inaltimii haldei inerioare ce duce la dublarea suprafetei de colectare a apelor cu implicatii directe asupra stabilitatii lucrarilor de haldare si a treptelor de excavare.
Fata de cele prezentate a fost necesara identificarea de solutii de gospodarire a apelor si colectarea acestora in treptele inferioare, in bazine de colectare si pomparea acestora catre forajul orizontal dirijat, iar pentru treptele superioare, realizarea de canale de preluaresidirijarerapidacatreacesta.
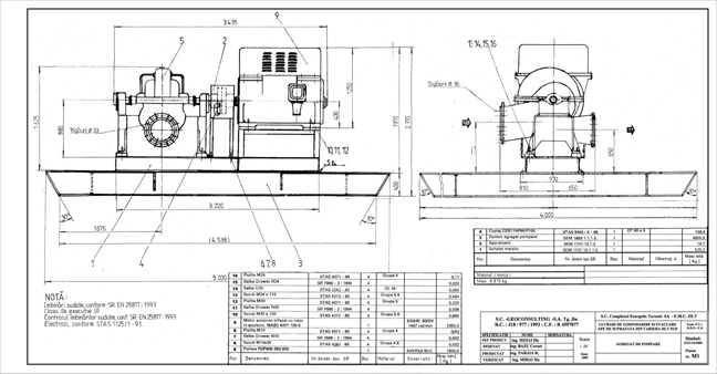
Documentatie trateaza lucrari de evacuarea apelor de pe vatra carierei Jilt Sud cu ajutorul unei statii de pompe si conducte de refulare aferente acesteia catre forajul orizontal dirijat, pentru treptele inferioare.
Pentru treptele superioare forajului se folosesc actualele lucrari de gospodarire cu colectarea si dirijarea directa in bazinul de desnisipare/linistire la accesul in forajul orizontal dirijat.




Serviciile noastre
-
Proiectare generala
Una dintre etapele cele mai importante in realizarea unei constructii este etapa de proiectare.
-
Studii geotehnice
Studiul geotehnic reprezinta o analiza complexa a conditiilor indeplinite de teren ...
-
Foraje si laborator geotehnic
S.C. GEOCONSULTING S.R.L. executa foraje si sondaje de testare şi de prelevare de probe...
-
Masuratori geofizice
Geofizica este o ramură majoră a științelor Pământului care aplică principiile și metodele cantitative ...
-
Masuratori topografice
Lucrările de topografie aplicată sunt necesare aproape în toate ramurile economiei naţionale
-
Constructii
Servicii de consultanta, proiectare si executie pentru diferite tipuri de constructii